Technical Design Services

Preparing for the Next Stage

At GFW Design + Architecture, the technical design stage begins once planning approval is underway or granted. During this time, we coordinate with Structural Engineers, Building Control, and other consultants as needed, depending on the scale and complexity of your project.

Detailed Technical Drawings

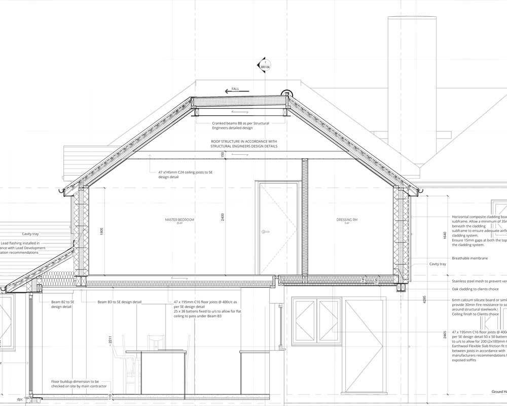
Following approval, we produce a full set of technical drawings. These include detailed construction specifications and are suitable for both Building Regulations submission and contractor pricing. The drawings ensure that your design is not only achievable but accurately communicated to all parties involved.


Third Party Requirements

We handle additional technical requirements, such as third-party consents. This can include Party Wall Agreements or specialist reports where applicable. Our involvement ensures that all necessary steps are covered ahead of the build phase.

What Our Technical Design Service Covers

  • Liaison with Structural Engineers, Building Control, and other consultants
  • Production of detailed technical drawings for regulatory approval
  • Comprehensive construction specifications for builders and contractors
  • Full documentation to support the tendering process
  • Oversight of third-party requirements such as Party Wall Agreements
  • Clear, coordinated information to support a smooth build phase

Building with Confidence

This phase sets the standard for the construction process. With clear, detailed information provided from the outset, contractors can price accurately and build with confidence. GFW Design + Architecture ensures your design is ready for real-world delivery.

Contact us to discuss your project and arrange a consultation with GFW Design + Architecture.